- 軟件大?。?span>1.83M
- 軟件語言:中文
- 軟件類型:國產軟件
- 軟件類別:免費軟件 / 電子圖書
- 更新時間:2016-06-06 10:40
- 運行環(huán)境:WinAll, WinXP
- 軟件等級:

- 軟件廠商:
- 官方網(wǎng)站:http://www.lz0519.com
頂好評:50%
踩壞評:50

2.24M/中文/3.6
9.99M/中文/8.2
4.31M/中文/7.1
3.95M/中文/8.0
92.73M/中文/4.5
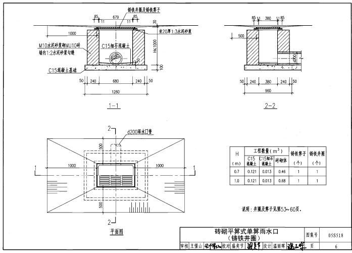
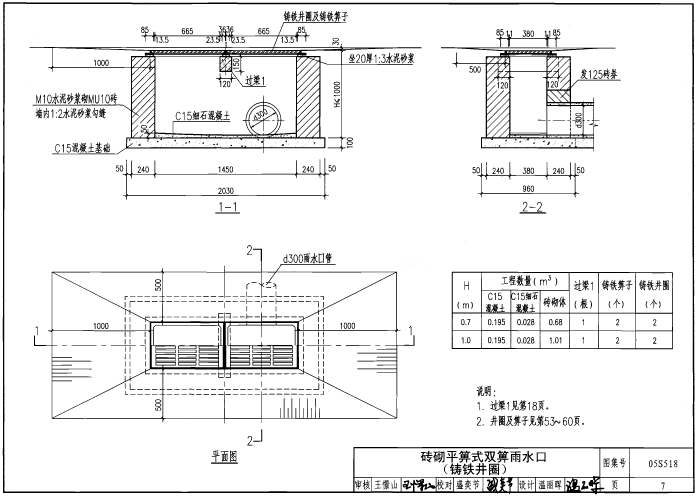
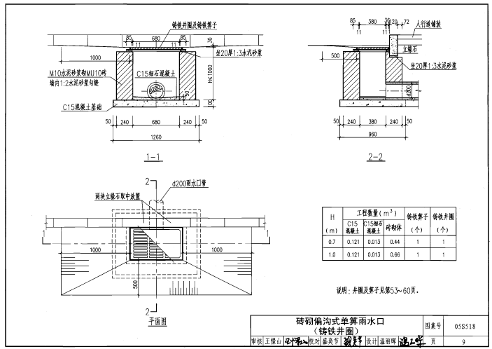
05s518雨水口圖集簡稱05s518圖集,是一份高清掃描版的國家建筑標準設計圖集,05s518雨水口標準圖集介紹了磚砌雨水口鑄鐵井圈、磚砌平箅式單、雙箅雨水口、雨水口過梁配筋圖等等內容,圖文并茂介紹詳細,需要下載這份資料的趕緊拿走吧。
本圖集適用于非抗震設計、抗震設防烈度為8度及8度以下地區(qū)的室外排水工程。本圖集雨水口適用于混凝土雨水管。主要內容包括磚砌雨水口鑄鐵井圈、磚砌雨水口混凝土井圈、預制混凝土裝配式雨水口鑄鐵井圈、雨水口箅子及井圈。圖集對雨水口的設計原則、施工要求也作了介紹,便于設計選用,并可直接按圖施工。




請描述您所遇到的錯誤,我們將盡快予以修正,謝謝!
*必填項,請輸入內容